Описание
VAILLANT turboTEC plus VUW 202/5-5 – это настенный газовый котел, высокоэффективное оборудование, характеризующееся значительным КПД, многофункциональной автоматикой, обеспечивающей безопасное, производительное функционирование котлов.
Модельный ряд: в одноконтурном и двухконтурном исполнении. Котлы двухконтурного устройства имеют мощность в пределах 28кВт, кроме отопления также участвуют в горячей водоподготовке и эффективны для обслуживания помещений 280м².
Все оборудование комплектуется датчиками безопасности, автоматикой, обеспечивающей быстрый перезапуск рабочих показателей при перебоях с электропитанием.
Котлы идеально подходят как для создания системы отопления с нуля, так и для замены/модернизации старой котельной. Эргономичный дизайн, компактные размеры, тихая работа и высокая эстетичность поверхностей позволяют разместить котел не только в специально отведенном помещении, но и в жилой зоне, например, на кухне.
Оснащение:
• Встроенный проточный пластинчатый теплообменник для нагрева воды, противодействующий образованию накипи
• Встроенный циркуляционный насос с автоматическим переключением ступеней
• Закрытый расширительный бак
• Автоматический воздухоотводчик
• Автоматический настраиваемый перепускной вентиль,
• Предохранительный вентиль
• Приоритетный предохранительный вентиль с электроприводом
• Интеллектуальный контроль давления в системе отопления
• Первичный теплообменник из меди со средним КПД>=91%
• Встроенный проточный пластинчатый теплообменник для нагрева воды , противодействующий образованию накипи
• Горелка из хромо-никелевой стали Постоянно действующая защита от замерзания
• Защита от заклинивания насоса и 3-х ходового вентиля при их простое более 24 ч
• Возможность настройки на частичную мощность в режиме отпления
• Электронное зажигание и управления всеми функциями
• Контроль состояния и поиск неисправностей через систему диагностики с ЖК-дисплеем с подсветкой и большими кнопками
• Присоединительный комплект в объёме поставки
• Встроенный коммутационный модуль для интерфейса стандарта eBus
Модельный ряд: в одноконтурном и двухконтурном исполнении. Котлы двухконтурного устройства имеют мощность в пределах 28кВт, кроме отопления также участвуют в горячей водоподготовке и эффективны для обслуживания помещений 280м².
Все оборудование комплектуется датчиками безопасности, автоматикой, обеспечивающей быстрый перезапуск рабочих показателей при перебоях с электропитанием.
Котлы идеально подходят как для создания системы отопления с нуля, так и для замены/модернизации старой котельной. Эргономичный дизайн, компактные размеры, тихая работа и высокая эстетичность поверхностей позволяют разместить котел не только в специально отведенном помещении, но и в жилой зоне, например, на кухне.
Оснащение:
• Встроенный проточный пластинчатый теплообменник для нагрева воды, противодействующий образованию накипи
• Встроенный циркуляционный насос с автоматическим переключением ступеней
• Закрытый расширительный бак
• Автоматический воздухоотводчик
• Автоматический настраиваемый перепускной вентиль,
• Предохранительный вентиль
• Приоритетный предохранительный вентиль с электроприводом
• Интеллектуальный контроль давления в системе отопления
• Первичный теплообменник из меди со средним КПД>=91%
• Встроенный проточный пластинчатый теплообменник для нагрева воды , противодействующий образованию накипи
• Горелка из хромо-никелевой стали Постоянно действующая защита от замерзания
• Защита от заклинивания насоса и 3-х ходового вентиля при их простое более 24 ч
• Возможность настройки на частичную мощность в режиме отпления
• Электронное зажигание и управления всеми функциями
• Контроль состояния и поиск неисправностей через систему диагностики с ЖК-дисплеем с подсветкой и большими кнопками
• Присоединительный комплект в объёме поставки
• Встроенный коммутационный модуль для интерфейса стандарта eBus
Характеристики
Основные атрибуты
Код товара
00000025565
Основные характеристики
Мощность, кВт
20
Тип монтажа
настенный
Тип топлива
газ
Количество контуров
2
Технические характеристики
Обогреваемая площадь, м²
200
Материал теплообменника
медь
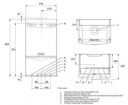
Присоединительный диаметр, дюйм
3/4
Напряжение сети, В:
230
Вид газа
природный/сжиженный
Диаметр дымохода, мм
60/100
Камера сгорания
закрытая
Габариты и вес
Длина, мм
440
Ширина, мм
338
Высота, мм
800
Вес, кг
42
Страна производства и гарантия
Страна производства
Германия
Гарантия, мес.
24
Отзывы
Оставить отзыв
Загрузка отзывов...
