С этим товаром покупают
Описание
Котел газовый настенный BAXI LUNA DUO-TEC E 1.12, 12 кВт, одноконтурный, конденсационный способен адаптироваться под тип и качество газа, параметры дымохода, дымоход и другие условия.
Все модели оснащены встроенным модуляционным насосом, который управляется электроникой котла и подстраивается под систему отопления, обеспечивая оптимальный температурный режим и экономию электроэнергии.
Котлы серии LUNA Duo-tec E оснащены современной горелкой с полным предварительным смешением газовоздушной смеси и работают с коэффициентом модуляции мощности 1 к 7.
Особенности:
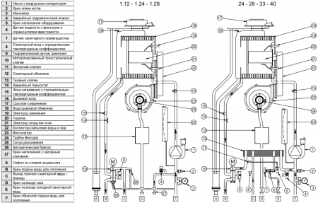
ГАЗОВАЯ СИСТЕМА
Система адаптивного контроля горения
Коэффициент модуляции мощности — 1:7
Сохраняют номинальную мощность при падении входного давления газа до 5 мбар
Непрерывная электронная модуляция пламени в режимах отопления и ГВС
Пониженное содержание СО и NOx
Горелка из нержавеющей стали AISI 316L с предварительным смешением газа и воздуха
Возможна перенастройка для работы на сжиженном газе
ГИДРАВЛИЧЕСКАЯ СИСТЕМА
Энергосберегающий модуляционный циркуляционный насос с электронным управлением и встроенным автоматическим воздухоотводчиком
Первичный теплообменник из нержавеющей стали AISI 316L
Вторичный пластинчатый теплообменник из нержавеющей стали (двухконтурные модели)
Автоматический байпас
Постциркуляция насоса
Фильтр на входе холодной воды
Встроенный электрический трехходовой клапан (в том числе в одноконтурных моделях)
ТЕМПЕРАТУРНЫЙ КОНТРОЛЬ
Новая панель управления с широким дисплеем
Два датчика температуры отопления на подаче и на обратке
Самоадаптация погодозависимой автоматики
Диапазон регулирования температуры в системе отопления 25-80°С
Встроенная погодозависимая автоматика
Регулирование и автоматическое поддержание заданной температуры в контурах отопления и ГВС
Цифровая индикация температуры и давления
Возможность управления разнотемпературными зональными системами
УСТРОЙСТВА КОНТРОЛЯ И БЕЗОПАСНОСТИ
Электронный манометр - срабатывает при падении давления воды в 2 этапа: предупреждение и блокировка (0,5 бар)
Электронная система самодиагностики и запоминание последних ошибок в работе
Ионизационный контроль пламени
Системы защиты от блокировки насоса и трехходового клапана
Защитный термостат от перегрева теплоносителя в первичном теплообменнике
Контроль безопасного удаления продуктов сгорания при помощи датчика NTC
Предохранительный клапан в контуре отопления (3 бар)
Система защиты от замерзания в контурах отопления и ГВС.
Все модели оснащены встроенным модуляционным насосом, который управляется электроникой котла и подстраивается под систему отопления, обеспечивая оптимальный температурный режим и экономию электроэнергии.
Котлы серии LUNA Duo-tec E оснащены современной горелкой с полным предварительным смешением газовоздушной смеси и работают с коэффициентом модуляции мощности 1 к 7.
Особенности:
ГАЗОВАЯ СИСТЕМА
Система адаптивного контроля горения
Коэффициент модуляции мощности — 1:7
Сохраняют номинальную мощность при падении входного давления газа до 5 мбар
Непрерывная электронная модуляция пламени в режимах отопления и ГВС
Пониженное содержание СО и NOx
Горелка из нержавеющей стали AISI 316L с предварительным смешением газа и воздуха
Возможна перенастройка для работы на сжиженном газе
ГИДРАВЛИЧЕСКАЯ СИСТЕМА
Энергосберегающий модуляционный циркуляционный насос с электронным управлением и встроенным автоматическим воздухоотводчиком
Первичный теплообменник из нержавеющей стали AISI 316L
Вторичный пластинчатый теплообменник из нержавеющей стали (двухконтурные модели)
Автоматический байпас
Постциркуляция насоса
Фильтр на входе холодной воды
Встроенный электрический трехходовой клапан (в том числе в одноконтурных моделях)
ТЕМПЕРАТУРНЫЙ КОНТРОЛЬ
Новая панель управления с широким дисплеем
Два датчика температуры отопления на подаче и на обратке
Самоадаптация погодозависимой автоматики
Диапазон регулирования температуры в системе отопления 25-80°С
Встроенная погодозависимая автоматика
Регулирование и автоматическое поддержание заданной температуры в контурах отопления и ГВС
Цифровая индикация температуры и давления
Возможность управления разнотемпературными зональными системами
УСТРОЙСТВА КОНТРОЛЯ И БЕЗОПАСНОСТИ
Электронный манометр - срабатывает при падении давления воды в 2 этапа: предупреждение и блокировка (0,5 бар)
Электронная система самодиагностики и запоминание последних ошибок в работе
Ионизационный контроль пламени
Системы защиты от блокировки насоса и трехходового клапана
Защитный термостат от перегрева теплоносителя в первичном теплообменнике
Контроль безопасного удаления продуктов сгорания при помощи датчика NTC
Предохранительный клапан в контуре отопления (3 бар)
Система защиты от замерзания в контурах отопления и ГВС.
Характеристики
Основные атрибуты
Код товара
НФ-00016574
Основные характеристики
Мощность, кВт
13,1
Тип монтажа
настенный
Тип топлива
газ
Количество контуров
1
Технические характеристики
Обогреваемая площадь, м²
131
Материал теплообменника
медь
Присоединительный диаметр, дюйм
3/4
Напряжение сети, В:
230
Диаметр дымохода, мм
(60—100)/80
Камера сгорания
закрытая
Габариты и вес
Ширина, мм
450
Высота, мм
763
Глубина,мм
345
Вес, кг
37,5
Страна производства и гарантия
Гарантия, мес.
24
Отзывы
Оставить отзыв
Загрузка отзывов...
